Módulo
Casa prefabricada
⭐ Destacado
Casa 170 m²
🏡 Casa Prefabricada Moderna – 3 Dormitorios | 2,5 Baños | 170 m²
21 200 €
Dimensiones
16,46 x 10,36
Stock
Agotado
Esta residencia prefabricada de alta gama combina elegancia arquitectónica, confort diario y un rendimiento energético conforme a la norma RE2020. Diseñada para ofrecer volúmenes generosos y una gran luminosidad, es la vivienda ideal para familias que buscan un espacio moderno, funcional y duradero.
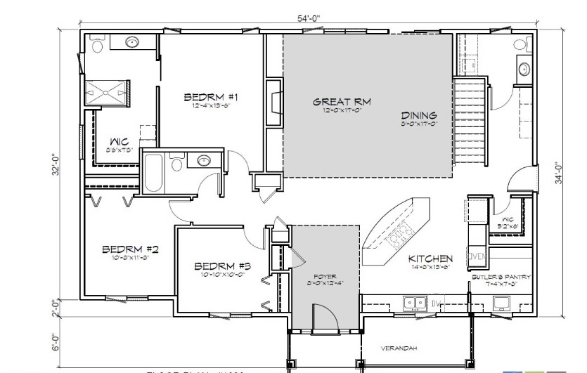
📐 Dimensiones & Superficie
Superficie total: 170 m²
Longitud: 16,46 m
Anchura: 10,36 m
Altura interior: hasta 3,35 m en las estancias principales
Configuración: vivienda amplia de una sola planta
🛏️ Distribución interior
La casa ofrece una distribución optimizada para un confort máximo.
Dormitorios
3 amplios dormitorios, incluyendo:
Una suite principal con vestidor (WIC) y baño privado
Dos dormitorios secundarios espaciosos con armarios integrados
Baños
2,5 baños
Ducha moderna, bañera, mueble-lavabo de diseño
Aseo independiente para mayor comodidad
🏠 Espacios de vida premium
Esta casa se distingue por sus acabados de alta gama y su ambiente cálido:
Gran sala principal (Great Room) con techo catedral de 11 pies
Chimenea moderna con armarios empotrados personalizados
Gran ventanal con travesaño superior para máxima luminosidad
Comedor abierto con techo de 11 pies
Cocina de diseño con:
Isla central con barra comedor
Butler’s pantry (despensa de servicio) con fregadero
Encimera ergonómica y abundantes espacios de almacenamiento
Entrada principal con vigas de madera en forma de X
Entrada lateral con vestidor y casilleros integrados
🛠️ Materiales & Construcción (norma RE2020)
Construida bajo estándares modernos que garantizan durabilidad, confort térmico y eficiencia energética.
Estructura & envolvente
Estructura en madera o acero reforzado, según configuración
Aislamiento de alto rendimiento conforme RE2020
Paneles exteriores con revestimiento resistente
Techo con tejas de asfalto de alta resistencia
Carpintería exterior PVC/Aluminio con doble acristalamiento
Interior
Tabiques en placas de yeso con acabados premium
Suelos en materiales resistentes (laminado o vinilo de lujo)
Excelente ventilación térmica y acústica
🌿 Rendimiento energético
Cumple con los requisitos de la RE2020, incluyendo:
Aislamiento reforzado
Acristalamientos de alta eficiencia
Reducción del consumo energético
Confort térmico óptimo en cualquier estación
⭐ Puntos fuertes
Arquitectura moderna y atemporal
Volúmenes impresionantes gracias a los techos de 11 pies
Suite principal con amplio vestidor
Cocina profesional con despensa de servicio
Gran sala espectacular con chimenea personalizada
Construcción duradera y eco-responsable
📐 Dimensiones & Superficie
Superficie total: 170 m²
Longitud: 16,46 m
Anchura: 10,36 m
Altura interior: hasta 3,35 m en las estancias principales
Configuración: vivienda amplia de una sola planta
🛏️ Distribución interior
La casa ofrece una distribución optimizada para un confort máximo.
Dormitorios
3 amplios dormitorios, incluyendo:
Una suite principal con vestidor (WIC) y baño privado
Dos dormitorios secundarios espaciosos con armarios integrados
Baños
2,5 baños
Ducha moderna, bañera, mueble-lavabo de diseño
Aseo independiente para mayor comodidad
🏠 Espacios de vida premium
Esta casa se distingue por sus acabados de alta gama y su ambiente cálido:
Gran sala principal (Great Room) con techo catedral de 11 pies
Chimenea moderna con armarios empotrados personalizados
Gran ventanal con travesaño superior para máxima luminosidad
Comedor abierto con techo de 11 pies
Cocina de diseño con:
Isla central con barra comedor
Butler’s pantry (despensa de servicio) con fregadero
Encimera ergonómica y abundantes espacios de almacenamiento
Entrada principal con vigas de madera en forma de X
Entrada lateral con vestidor y casilleros integrados
🛠️ Materiales & Construcción (norma RE2020)
Construida bajo estándares modernos que garantizan durabilidad, confort térmico y eficiencia energética.
Estructura & envolvente
Estructura en madera o acero reforzado, según configuración
Aislamiento de alto rendimiento conforme RE2020
Paneles exteriores con revestimiento resistente
Techo con tejas de asfalto de alta resistencia
Carpintería exterior PVC/Aluminio con doble acristalamiento
Interior
Tabiques en placas de yeso con acabados premium
Suelos en materiales resistentes (laminado o vinilo de lujo)
Excelente ventilación térmica y acústica
🌿 Rendimiento energético
Cumple con los requisitos de la RE2020, incluyendo:
Aislamiento reforzado
Acristalamientos de alta eficiencia
Reducción del consumo energético
Confort térmico óptimo en cualquier estación
⭐ Puntos fuertes
Arquitectura moderna y atemporal
Volúmenes impresionantes gracias a los techos de 11 pies
Suite principal con amplio vestidor
Cocina profesional con despensa de servicio
Gran sala espectacular con chimenea personalizada
Construcción duradera y eco-responsable
Contenedores similares
Stock limitado
Oficina bungalow con mirador
Optimice su espacio de trabajo con nuestro bungalow de oficina de 6 metros, equipado con un mirador para disfrutar de una luz excepcional. Este módulo de 6 metros de largo y 2,44 metros de ancho está diseñado para ofrecer un confort óptimo con todas las comodidades necesarias.
2 280 €
Disponible
1 disponibles
CONTENEDOR MARÍTIMO PARA OFICINAS DE 20 PIES
Contenedor Oficina de 20 Pies – Nuevo, Climatizado y Listo para Usar
6 m x 2.438 m x 2.591 m.
3 350 €
Agotado
Stock limitado
CONTENEDOR DE OFICINA DE 20 PIES CON PUERTA CORREDERA
Contenedor Oficina de 20 Pies – Estilo Premium con Aire Acondicionado
6 x 2.438 x 2.591
3 350 €
Disponible
5 disponibles
-20%
Stock limitado
Contenedor Modular Oficina de 20 Pies – 2 Ventanas + WC
6m x 2.438m x 2.80m
1 200 €
1 500 €
Disponible
4 disponibles