Módulo
Casa prefabricada
⭐ Destacado
Casa prefabricada 141 m²
Casa prefabricada espaciosa – 141 m²
26 800 €
Dimensiones
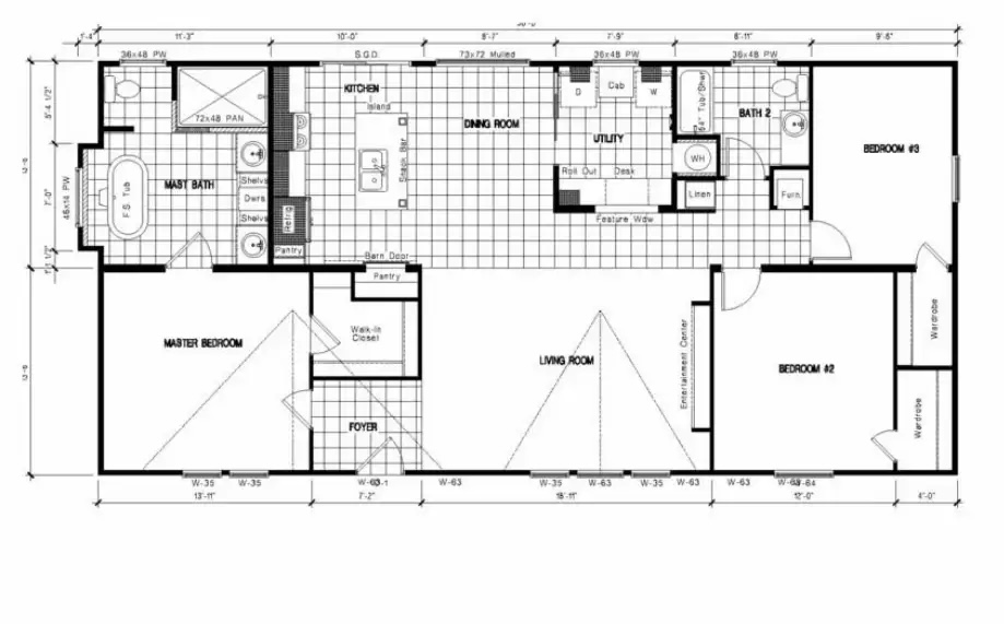
18,6 m × 7,6 m
Stock
Agotado
📏 Dimensiones exteriores: 18,6 m (largo) × 7,6 m (ancho)
🏡 Distribución interior:
3 dormitorios amplios (incluido un dormitorio principal de 4,2 m × 4,0 m con vestidor)
2 baños completos (baño principal con bañera + ducha separada, baño secundario con ducha y WC)
Gran salón abierto (5,5 m × 4,0 m) conectado al comedor
Cocina moderna con isla central (4,0 m × 3,2 m)
Lavandería independiente con espacio de escritorio y estanterías
Dormitorios secundarios de 3,6 m × 3,0 m y 3,0 m × 3,0 m con armarios grandes
🪵 Materiales & Estructura:
Estructura portante: madera tratada y acero galvanizado
Revestimiento exterior: paneles vinílicos o madera tratada + detalles en color bicolor
Carpintería exterior: PVC o aluminio con doble acristalamiento aislante
Cubierta inclinada: teja asfáltica o metálica según opción
Acabados interiores: suelos vinílicos o laminados + paredes lisas pintadas
🌱 Aislamiento & Confort:
Aislamiento térmico y acústico con lana de roca / poliuretano de alta densidad
Certificación RE2020 → alta eficiencia energética y respeto al medio ambiente
Casa adaptada a todas las estaciones (verano e invierno)
✅ Ventajas principales:
Superficie total de 141 m², ideal para familias
Espacios amplios y luminosos
Materiales duraderos y resistentes
Lista para instalar, con electricidad y fontanería completas
Posibilidad de personalización en acabados y distribución
👉 Disponible en toda España con transporte e instalación rápida.
🏡 Distribución interior:
3 dormitorios amplios (incluido un dormitorio principal de 4,2 m × 4,0 m con vestidor)
2 baños completos (baño principal con bañera + ducha separada, baño secundario con ducha y WC)
Gran salón abierto (5,5 m × 4,0 m) conectado al comedor
Cocina moderna con isla central (4,0 m × 3,2 m)
Lavandería independiente con espacio de escritorio y estanterías
Dormitorios secundarios de 3,6 m × 3,0 m y 3,0 m × 3,0 m con armarios grandes
🪵 Materiales & Estructura:
Estructura portante: madera tratada y acero galvanizado
Revestimiento exterior: paneles vinílicos o madera tratada + detalles en color bicolor
Carpintería exterior: PVC o aluminio con doble acristalamiento aislante
Cubierta inclinada: teja asfáltica o metálica según opción
Acabados interiores: suelos vinílicos o laminados + paredes lisas pintadas
🌱 Aislamiento & Confort:
Aislamiento térmico y acústico con lana de roca / poliuretano de alta densidad
Certificación RE2020 → alta eficiencia energética y respeto al medio ambiente
Casa adaptada a todas las estaciones (verano e invierno)
✅ Ventajas principales:
Superficie total de 141 m², ideal para familias
Espacios amplios y luminosos
Materiales duraderos y resistentes
Lista para instalar, con electricidad y fontanería completas
Posibilidad de personalización en acabados y distribución
👉 Disponible en toda España con transporte e instalación rápida.
Contenedores similares
Stock limitado
Oficina bungalow con mirador
Optimice su espacio de trabajo con nuestro bungalow de oficina de 6 metros, equipado con un mirador para disfrutar de una luz excepcional. Este módulo de 6 metros de largo y 2,44 metros de ancho está diseñado para ofrecer un confort óptimo con todas las comodidades necesarias.
2 280 €
Disponible
1 disponibles
CONTENEDOR MARÍTIMO PARA OFICINAS DE 20 PIES
Contenedor Oficina de 20 Pies – Nuevo, Climatizado y Listo para Usar
6 m x 2.438 m x 2.591 m.
3 350 €
Agotado
Stock limitado
CONTENEDOR DE OFICINA DE 20 PIES CON PUERTA CORREDERA
Contenedor Oficina de 20 Pies – Estilo Premium con Aire Acondicionado
6 x 2.438 x 2.591
3 350 €
Disponible
5 disponibles
-20%
Stock limitado
Contenedor Modular Oficina de 20 Pies – 2 Ventanas + WC
6m x 2.438m x 2.80m
1 200 €
1 500 €
Disponible
4 disponibles